Ons kantoor is lid van Baerz & Co luxury homes; een Nederlands platform dat exclusieve woningmakelaars met elkaar verbindt. Voor meer informatie over ons landelijke aanbod en dienstverlening kunt u contact opnemen met ons secretariaat.

RHENEN
Grebbeweg 47 - 3911 AT
Nederland

Wistik Zonnenberg profile image
Wistik Zonnenberg
Register Makelaar Taxateur/ Eigenaar
€1.695.000 k.k.
Woonoppervlakte
288m2
Perceeloppervlakte
1058m2
Slaapkamers
8

Omschrijving

Welkom in deze schitterende luxe herenvilla in het pittoreske Rhenen, een ware parel die zich onderscheidt door een perfecte combinatie van elegantie, ruimte en een sublieme afwerking. Met een royaal woonoppervlak van ca. 288 m², 9 kamers en een inhoud van ca. 1230 m³ op een ruim perceel van ca. 1060 m² biedt deze villa alles wat u nodig heeft voor een comfortabel en stijlvol leven. Hier ervaart u de luxe van rust, ruimte, en modern wooncomfort, op een centrale locatie dicht bij alle voorzieningen.

Bij aankomst valt meteen de imposante grindoprit op. Deze royale oprit biedt volop parkeergelegenheid voor meerdere voertuigen en leidt naar de stijlvolle entree van de villa. U wordt verwelkomd in een grote, ruime hal die een gevoel van grandeur uitstraalt. Hier vindt u een fraai afgewerkte wc, handig voor zowel bewoners als gasten. De hal geeft u toegang tot de verschillende leefruimtes die deze woning zo uniek maken.

De woonkamer is een ware blikvanger met zijn visgraatvloer en elegante inrichting. Deze riante ruimte is slim ingedeeld en biedt meerdere gezellige zitplekken, waardoor u kunt genieten van de verschillende hoeken en uitzichten in de kamer. De overvloed aan ramen zorgt voor een prachtige lichtinval gedurende de dag, wat bijdraagt aan een lichte en open sfeer. Hier kunt u ontspannen met een goed boek of gasten ontvangen in een stijlvolle setting.

Aan de andere kant van de hal bevindt zich de luxe keuken. Deze ruime en modern ingerichte keuken is voorzien van hoogwaardige inbouwapparatuur en biedt veel werk- en opbergruimte. De keuken is een droom voor iedere kookliefhebber, met voldoende ruimte om uitgebreid te koken en te bakken. De keuken sluit naadloos aan op de eetkamer, een uitnodigende ruimte waar u met gemak met meerdere mensen kunt dineren. Of het nu gaat om een gezellig diner met familie of een formeel diner met vrienden, deze eetkamer biedt de perfecte setting. Vanuit de keuken heeft u tevens toegang tot de praktische bijkeuken, ideaal voor extra opslag en als wasruimte.

Wanneer u vanuit de hal naar de eerste verdieping gaat, komt u uit bij de indrukwekkende trap die als een rode draad door het huis loopt. Deze statige trap, een blikvanger in de woning, leidt u naar de bovenverdieping.

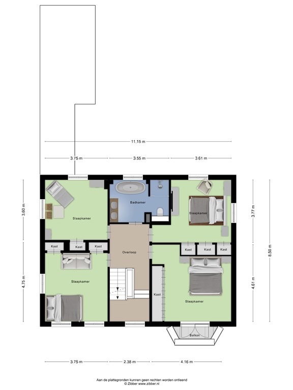
Op de eerste verdieping zijn vier royale slaapkamers aanwezig. Elke kamer is prachtig afgewerkt en biedt veelzijdige mogelijkheden voor gebruik. Of u nu extra slaapkamers, een kantoorruimte, een hobbykamer of een fitnessruimte nodig heeft, deze kamers kunnen geheel naar uw wensen worden ingericht. De fraai afgewerkte badkamer op deze verdieping is voorzien van een luxueus vrijstaand bad, een plek waar u volledig tot rust kunt komen en kunt genieten van een moment voor uzelf.

De tweede verdieping herbergt nog eens vier slaapkamers, die net als op de eerste verdieping multifunctioneel inzetbaar zijn. Deze kamers kunnen dienen als extra slaapkamers, speelkamers, of zelfs als een privé kantoor. Bovendien is er op deze verdieping een royale ruimte met zitgedeelte, ideaal als lounge of recreatieruimte.
Hier kunnen kinderen spelen, tieners zich terugtrekken, of kunt u een gezellige filmavond organiseren.

Buiten de villa vindt u een grote tuin met talloze mogelijkheden voor recreatie en ontspanning. Deze prachtige tuin biedt voldoende ruimte voor kinderen om te spelen, voor het aanleggen van een moestuin of voor het creëren van verschillende zithoekjes waar u kunt ontspannen. Of u nu wilt genieten van een zomerse barbecue, tuinieren, of gewoon in alle rust wilt relaxen, deze tuin biedt het allemaal. De tuin is een perfecte verlenging van de leefruimte binnen en biedt volop mogelijkheden voor buitenleven. De tuin is ook prachtig traditioneel met rozenstruiken en rijke borders.

De villa beschikt ook over een ruime garage, ideaal voor het stallen van voertuigen, fietsen of het opbergen van tuingereedschap en andere spullen.

Deze prachtige villa ligt centraal in Rhenen, op korte afstand van het NS-station, winkels, supermarkten, op steenworp afstand van sportverenigingen (tennis/voetbal), gezellige restaurants en het bekende Ouwehands Dierenpark. Hier woont u in een rustige omgeving, maar met alle voorzieningen binnen handbereik. De centrale ligging maakt deze woning tot een ideale uitvalsbasis voor zowel woon-werkverkeer als voor ontspanning en recreatie.

Algemene gegevens
- Type woning: vrijstaande Villa
- Bouwjaar: 1941
- Verbouwjaar: 2021/2022
- Buiten schilderwerk: 2025
- Aantal kamers: 9
- Aantal slaapkamers: 8
- Aantal badkamers: 1
- Parkeerruimte: op eigen terrein
- Aanwezig: dakkapel, garage, bijkeuken en riante kelders
- Ligging tuin: rondom waarvan de achtertuin de hoofdtuin is
- Tuin bereik: opzij en via het woonhuis

Technische gegevens
- Warmwatervoorziening: Combiketel met boiler (Nefit 2016)
- Verwarmvoorziening: Combiketel met elektrische boiler (beide Nefit 2016)
- Vloerverwarming: in de hal, keuken, badkamer en toilet
- Zonnepanelen: aanwezig
- Houtkachel in de woonkamer
- Voorzieningen: buitenzonwering/kelder/elektrische laadpaal
- Mechanische ventilatie: aanwezig
- Isolatie: volledige isolatie
- Dubbel glas: geheel
- TV kabel
- Kozijnen: hout

WILT U EVEN BINNEN KIJKEN?

Voor meer informatie omtrent deze woning, kunt u contact opnemen met ons kantoor in Rhenen.

U bent van harte welkom! De beste indruk van deze woning krijgt u natuurlijk tijdens een bezichtiging. Wij proberen onze bezichtigingen altijd in samenspraak met verkoper en koper te plannen en nemen ruim de tijd, zodat u op uw gemak de woning kan bekijken en ervaren.
N.B. Aan de samenstelling van deze gegevens is maximale zorg besteed. Aan onvolkomenheden in de vermelde gegevens en tekeningen kunnen geen rechten en aanspraken worden ontleend.

Kenmerken

Zonnepanelen
Garage
Overdracht
Vraagprijs
€ 1.695.000 k.k.
Status
Available
Aanvaarding
In Concert
Referentie
07996
Bouw
Soort woonhuis
Villa
Soort bouw
Detached House
Bouwjaar
1941
Energieklasse
C
Slaapkamers
8
Badkamers
1
Oppervlakten en inhoud
Woonoppervlakte
288 m2
Overige inpandige ruimte
45 m2
Gebouwgebonden buitenruimte
4 m2
Inhoud
1232 m3
Perceeloppervlakte
1058 m2
faciliteiten
Garage
Garden
Internetconnection
Outdoorawnings
Solarpanels
Ventilation
Baerz & Co Property Brochure

Brochure

Video’s

Plattegronden

Zonnenberg Makelaardij

Kerkewijk 108
3904 JG Veenendaal

info@zonnenbergmakelaardij.nl
+31 318 559600

www.zonnenbergmakelaardij.nl

Informatie / bezichtigingsaanvraag

Wistik Zonnenberg profile image
Wistik Zonnenberg
Register Makelaar Taxateur/ Eigenaar

Een luxe woning kopen in Rhenen

Rhenen staat voor hoogwaardig wonen met rivierzicht en monumentale charme. Bewoners genieten van een hechte gemeenschap, professionele vastgoedservice en naadloze integratie met de internationale lifestyle.