Baerz & Co is a nationwide partnership of carefully selected boutique luxury real estate agents. Together, we form a single network with a shared portfolio. The properties you see on our website come from all affiliated offices within Baerz & Co. As a result, not every property is sold directly by our office, but by a specialized colleague within our network. Have you found a property that appeals to you and would you like more information? We will be happy to put you in touch with the relevant sales agent, so that you receive direct and careful guidance.

BARCELONA
Spanje

Dominique Blom profile image
Dominique Blom
Real Estate Agent
€1.750.000
Woonoppervlakte
184m2
Perceeloppervlakte
N/A
Slaapkamers
3

Omschrijving

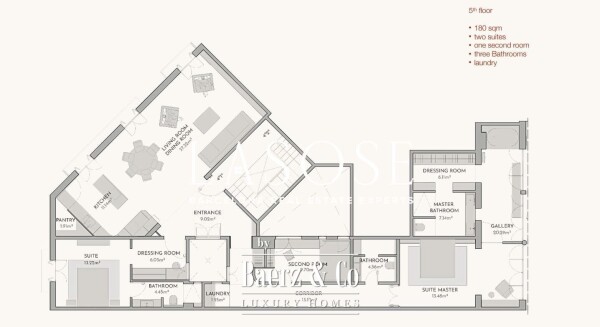
Flat Barcelona zet een serene standaard voor eigentijds wonen in het hart van de stad, met een woonoppervlak van 184 m² op de vijfde verdieping van een volledig in 2021 gerenoveerd pand. Dit onderscheidende appartement beschikt over drie slaapkamers en drie badkamers, voorzien van een natuurhouten parketvloer en hoogwaardige dubbele beglazing die rust en comfort waarborgen. Geavanceerde luchtkanalen voor airconditioning en een warmtepomp zorgen het hele jaar door voor aangename klimaathuishouding op maat.

Dankzij de gunstige oriëntatie geniet iedere ruimte van overvloedig daglicht, terwijl het vrije uitzicht zich uitstrekt over de skyline van Barcelona. Een privébalkon verbindt het woongedeelte verder met de zintuiglijke dynamiek van de stad. De gemeenschappelijke voorzieningen verrijken het dagelijks leven, met een recent vernieuwd dakterras met panoramisch uitzicht van zee tot Tibidabo, een volledig uitgeruste fitnessruimte, en het gemak van een conciërgeservice en lift.

Eén blok verwijderd van het vernieuwde Consell de Cent en op korte loopafstand van de Paseo de Sant Joan, biedt de locatie moeiteloos toegang tot exclusieve winkels, rustige groene zones en de levendigheid van het centrum van Barcelona. Dit appartement belichaamt een ingetogen mix van luxe en authenticiteit voor wie privacy én locatie waardeert.

Ontdek Barcelona met Baerz, Uw Vertrouwde Personal Property Finder & Advisor

De kennis van een expert in het hogere segment in Barcelona is van onschatbare waarde. Inzicht in marktmechanismen, toegang tot vertrouwelijke of off-market aanbod en deskundige onderhandeling zijn essentieel. Maatwerkadvies biedt discretie, diepgewortelde connecties en risicobeheersing gedurende het hele koop- of verkooptraject, zodat kopers en verkopers hun doelstellingen realiseren.

Vermijd veelvoorkomende valkuilen

Internationale kopers verspillen vaak kostbare tijd aan dubbele, verouderde of misleidende online aanbiedingen, en ook omdat bijna 30% van de luxe woningen nooit openbaar op de markt verschijnt. Verkopersmakelaars behartigen de belangen van de verkoper, niet die van kopers. Alleen al het aanvragen van informatie over een woning kan ertoe leiden dat een verkoopmakelaar u zonder uw toestemming als “cliënt” registreert.
Met Baerz Property Finders & Advisors voorkomt u al deze valkuilen volledig. Wij werken uitsluitend in uw belang en bieden onafhankelijke vertegenwoordiging, heldere begeleiding en toegang tot alle beschikbare woningen, inclusief off-market aanbiedingen die anderen nooit te zien krijgen.

Interesse in een Personal Property Advisor?

Wij tonen u alle beschikbare woningen op één plek. Neem gerust contact met ons op om te zien hoe wij aan uw wensen kunnen voldoen en uitsluitend uw belangen zullen beschermen.

Kenmerken

Zwembad
Air conditioning
Overdracht
Vraagprijs
€ 1.750.000
LAS
Bouw
Kamers
N/A
Slaapkamers
3
Badkamers
3
Oppervlakten en inhoud
Woonoppervlakte
184 m2
Perceeloppervlakte
0 m2
faciliteiten
Balcon
A/A
Elevator
Wardrobes cupboard
Appliances
Heating
Air-Conditioning
Video Intercom
Community Pool
Light
Gymnasium
Washing room
Baerz & Co Property Brochure

Brochure

Video’s

Informatie / bezichtigingsaanvraag

Dominique Blom profile image
Dominique Blom
Real Estate Agent

Een luxe woning kopen in Barcelona

De luxevastgoedmarkt van Barcelona verwelkomt internationale bewoners die kiezen voor stijlvol wonen, een levendige cultuur en veilige investeringskansen. Een mix van erfgoed, gemeenschapsgevoel en hoogwaardige dienstverlening wacht in deze mediterrane metropool.