Ons kantoor is lid van Baerz & Co luxury homes; een Nederlands platform dat exclusieve woningmakelaars met elkaar verbindt. Voor meer informatie over ons landelijke aanbod en dienstverlening kunt u contact opnemen met ons secretariaat.

Villa for sale in VOORBURG

VOORBURG Koningin Wilhelminalaan 520 - 2274 BM The Netherlands


Sjoerd Bouma profile image
Sjoerd Bouma
Real Estate Agent
+31 6 55 78 20 36
info@beeuwkes.nl

Beeuwkes Makelaardij
Van Alkemadelaan 338
2597 AS Den Haag
NETHERLANDS
+31 703143000
www.beeuwkes.nl
info@beeuwkes.nl

Living area
257m2
Plot size
296m2
Bedrooms
7

Description

Spacious (ca. 285m2) end-of-terrace house with 7 bedrooms, 2 bathrooms, garden on 3 sides, and a driveway set on a wide, tree-lined street in historic Voorburg.

This stylish family home is perfectly positioned just 5 minutes from the town centre and within easy reach of The Hague’s city centre, Beatrixkwartier, and Central station by both public transport and car. Major motorways offer quick access to the Rotterdam airport in a mere 15 minutes and Schiphol in 30 minutes.
The property, which is located on a plot of approximately 296m2, also boasts a fantastic eat-in kitchen, a roomy basement with natural light, and a sunny, southwest-facing back garden with separate entrance.

Layout:
Past the front door is a vestibule with built-in storage where double doors inset with glass open to a big central hall with a modern guest lavatory. At the front is the living room, which spans the full width of the house and features bay windows and a large fireplace. The generously proportioned dining room at the rear is open to the big, modern well-equipped kitchen; both have doors to the sunny back garden. The ground level, which is largely laid with oak parquet flooring, has lofty ceilings measuring ca. 314 cm.

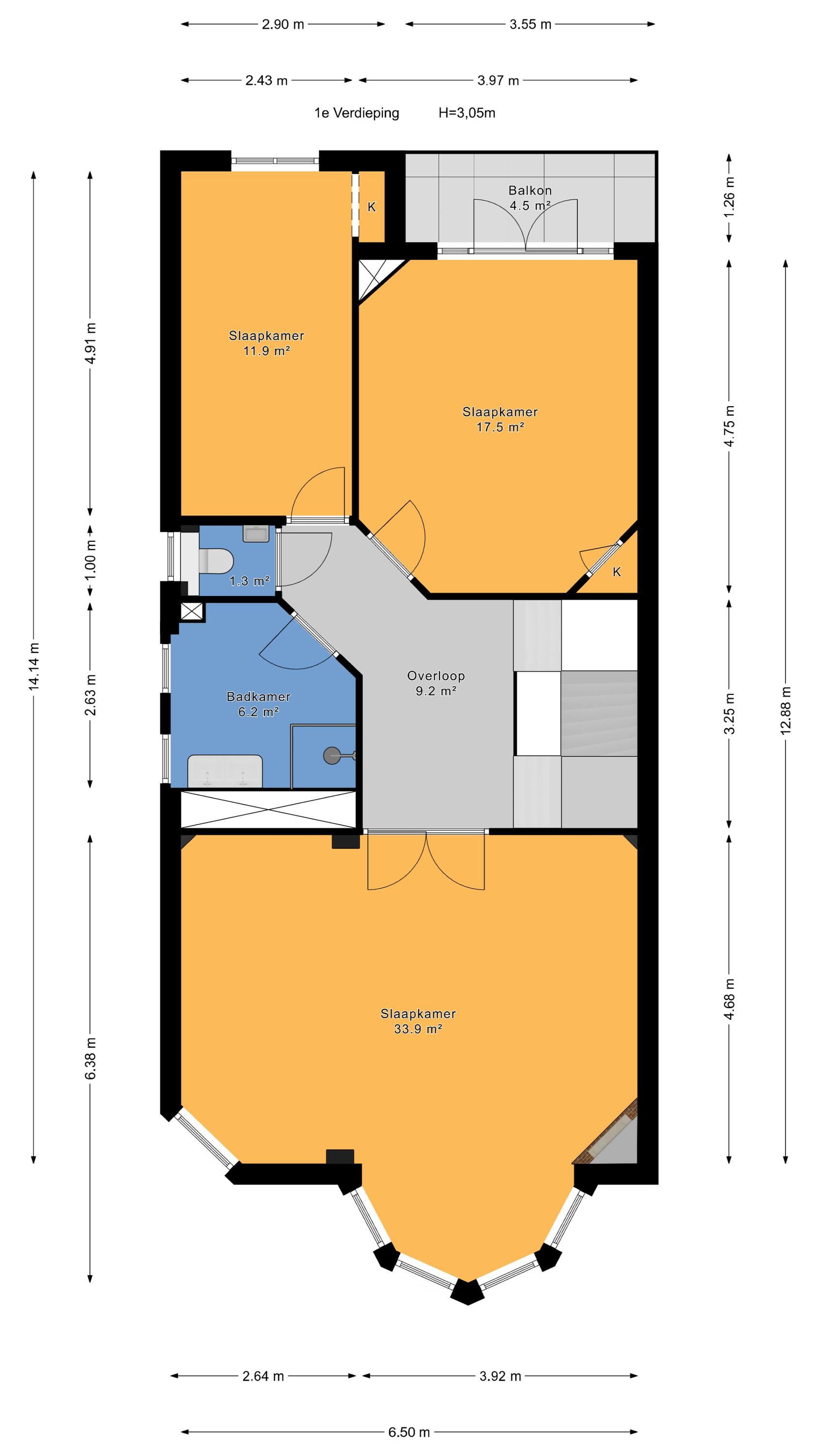
At the top of the elegant L-shaped staircase to the first floor is a big landing with a modern w.c. and a good-sized, bright contemporary bathroom with shower, vanity, and heated towel rail. The front bedroom, also with a bay window, extends the full width of the façade; the two spacious bedrooms at the back have access to a balcony.

On the 2nd floor is another large, light landing with a separate modern w.c. This level features 2 spacious bedrooms and a balcony facing the front, a large back bedroom with corner wardrobe, and a big side room. They share a capacious bathroom with bath, walk-in shower, and vanity, plus a balcony.

There is also a substantial cellar measuring ca. 35m2, with natural daylight and a ceiling height of 186 cm., that houses the central heating unit.

Facts, figures, and features:
- Freehold, plot size 296m2
- Interior space ca. 256m2 excluding cellar measuring 35m2
- Double glazing throughout
- Exterior repainted in 2025
- Structural inspection report follows
- Older construction, materials, and environmental disclaimers will be included in the purchase agreement
- Driveway with space for one vehicle
- Exterior bicycle shed
- Available in mutual consultation

Features

Transfer of ownership
price
€ 1.185.000 k.k.
Status
beschikbaar
Acceptance
in overleg
Construction
Kind of house
Eengezinswoning
Building type
halfvrijstaande woning
Construction period
1920
Energy rating
D
Bedrooms
7
Bathrooms
2
Surface Areas And Volume
Living area
257 m2
Other indoor space
35 m2
Exterior space attached to the building
11 m2
External storage space
5 m2
Volume in cubic meters
1141 m3
Plot size
296 m2
facilities
Aan rustige weg
In woonwijk
Baerz & Co Property Brochure

Brochure

Information / Viewing request

Videos

Photos