Baerz & Co is een landelijk samenwerkingsverband van zorgvuldig geselecteerde boutique luxury makelaars. Samen vormen wij één netwerk, met één gedeeld aanbod. De woningen die u op onze website ziet, zijn afkomstig van alle aangesloten kantoren binnen Baerz & Co. Daardoor is niet ieder object rechtstreeks door ons kantoor in verkoop, maar door een gespecialiseerde collega binnen ons netwerk. Heeft u een woning gevonden die u aanspreekt en wilt u meer informatie? Dan brengen wij u graag persoonlijk in contact met de betreffende verkoopmakelaar, zodat u direct en zorgvuldig wordt begeleid.

ROTTERDAM
Straatweg 20 - 3051 BE
Netherlands

Dominique Blom profile image
Dominique Blom
Real Estate Agent
€1,295,000 k.k.
Living Area
232m2
Plot Size
413m2
Bedrooms
6

Description

Charming Townhouse with Elegant Finishes, Deep Garden, and Surprisingly Generous Living Space

At the beginning of the stately Straatweg in Hillegersberg stands this characterful townhouse that offers everything you would expect from a home in this segment: atmosphere, comfort, and space. Behind the classic façade lies a contemporary, high-quality interior with great attention to detail. The combination of authentic features, modern living comfort, and a deep, green rear garden makes this a truly wonderful family home — a place where style and warmth come together. Ideal for those who wish to live spaciously and elegantly on one of Hillegersberg’s most beautiful streets.

Location:
Straatweg is one of the most characteristic streets in Hillegersberg. Here you live peacefully, with everything within easy reach: shops and restaurants along Bergse Dorpsstraat and Kleiweg, excellent schools, sports clubs, and the Bergse Plassen just around the corner. Rotterdam city centre and major roads are easily accessible.

Layout:

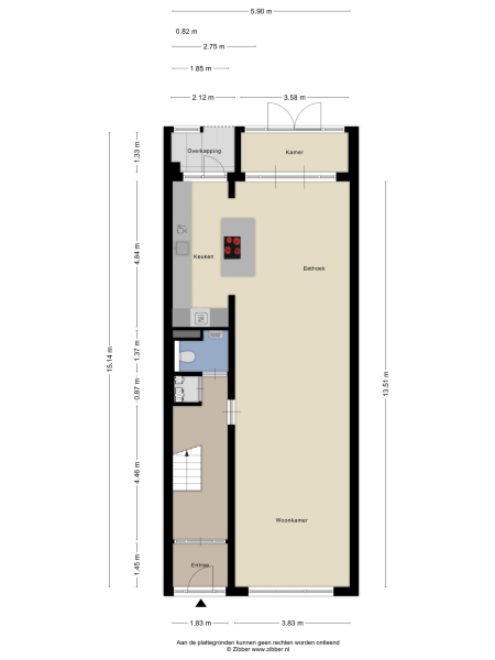
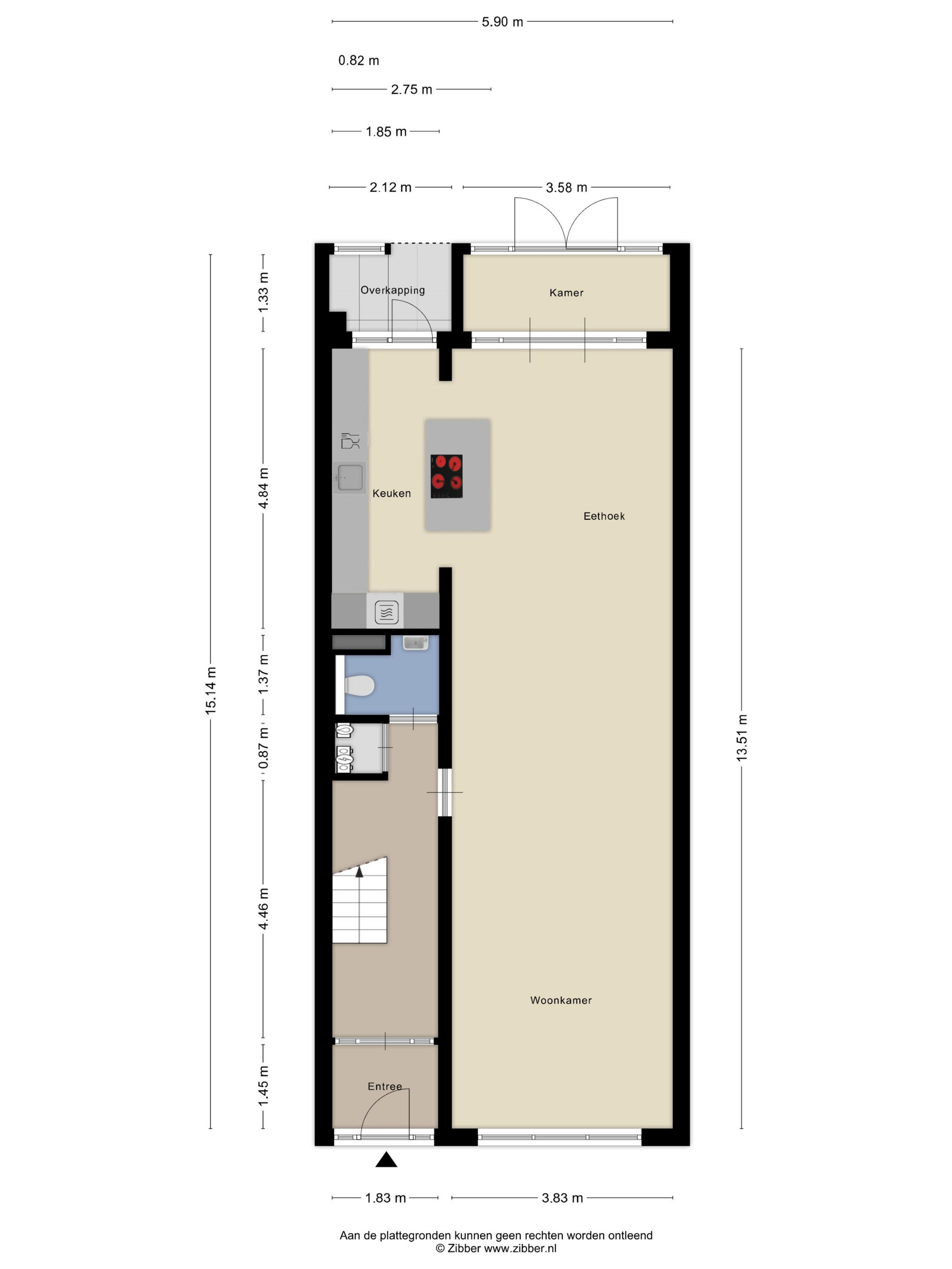
Ground Floor:
Representative entrance with high ceilings and original details. From the hallway, access to the modern guest toilet and the spacious living area with a beautiful oak floor. The open kitchen (renovated in 2022) forms the heart of the home and is equipped with a large cooking island, high-end built-in appliances including a steam oven and a (wine) climate cabinet. Adjacent is the bright conservatory with French doors opening onto the sunny rear garden, where indoor and outdoor living blend seamlessly.

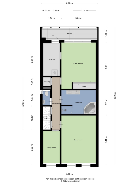
First Floor:
Spacious landing with built-in cupboard and separate toilet. At the front are two charming rooms, ideal as a study or children’s bedrooms.
The modern bathroom features a corner bathtub, walk-in shower, and double washbasin. The large master bedroom at the rear includes a built-in sliding wardrobe and French doors to the wide balcony overlooking the garden.

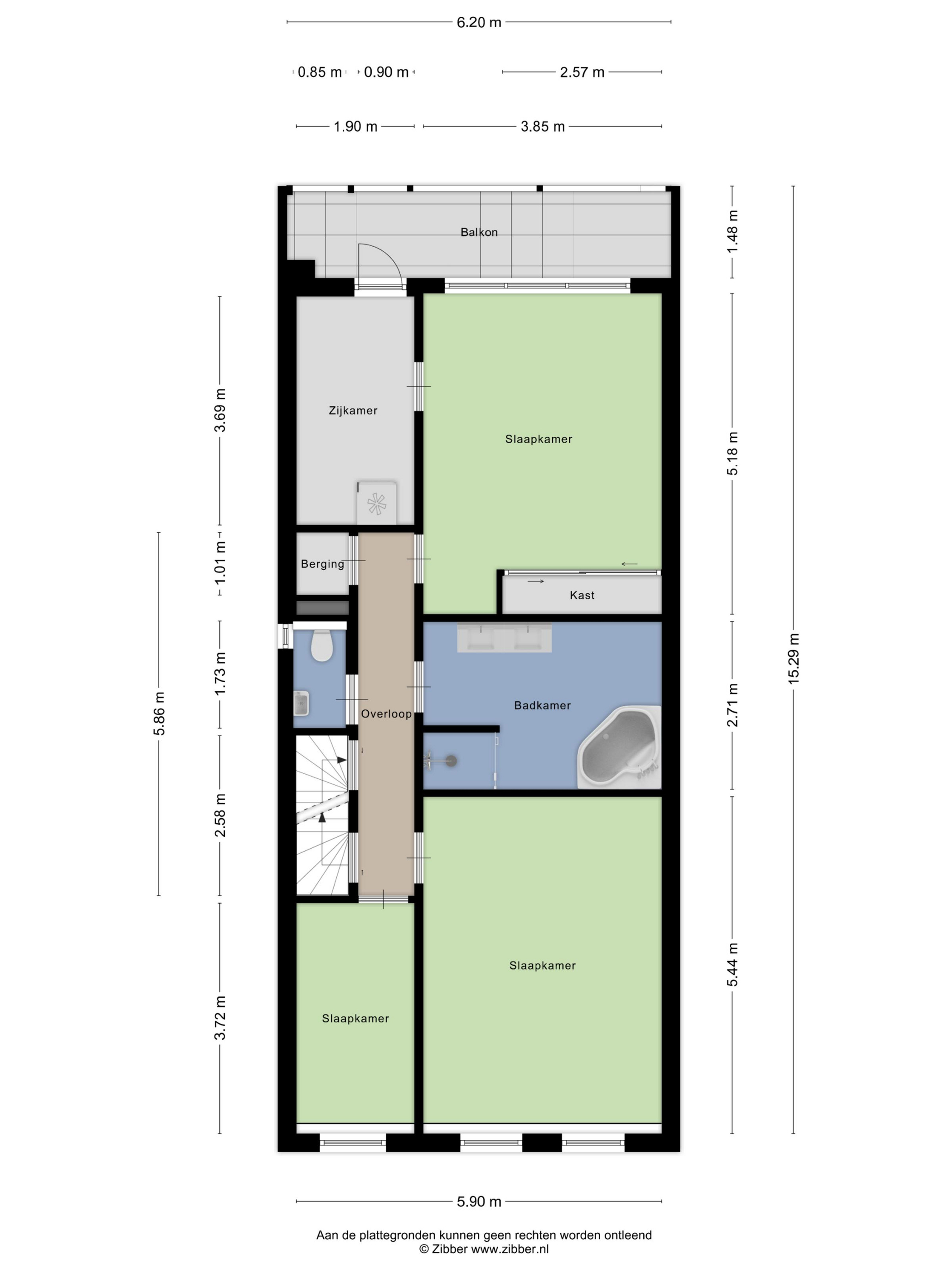
Second Floor:
The attic floor is surprisingly spacious and currently offers one bedroom at the rear. The large room at the front has been converted into a generous walk-in closet but can easily be transformed into a very large second bedroom. The rear bedroom enjoys lovely, unobstructed garden views. There is also a second modern bathroom with a walk-in shower and washbasin, plus a practical laundry area with space for a washing machine and dryer.

Garden:
A garden offering space, tranquility, and privacy. The front garden is beautifully landscaped and provides ample space for convenient daily bike parking — both practical and tidy.

The rear garden is truly a surprise: so generous it feels like a private park, filled with sunlight, greenery, and peace. A perfect place for children to play, to entertain guests, or simply to enjoy the outdoors long into the evening. At the back of the garden stands an impressive storage building of approximately 18 m², ideal for garden tools, hobbies, or additional storage.

Key Features
- Built circa 1903
- Freehold property with a total plot size of 413 m²
- Energy label B
- Living area approx. 232 m² (in accordance with BBMI / NEN 2580)
- Building-related outdoor space approx. 12.2 m² (BBMI / NEN 2580)
- External storage approx. 18 m² (BBMI / NEN 2580)
- 6 bedrooms and 2 bathrooms
- Fully fitted with wooden and synthetic frames with HR++ double glazing
- Exterior painting completed in 2022 and after installation of HR++ glazing in 2025
- Central heating and hot water via HR boiler (2019)
- Exceptionally spacious garden that feels like a private park
- Foundation repaired
- Alarm system installed
- Air conditioning on the second floor
- Paid parking; residents can apply for a parking permit

Delivery: in consultation

For additional information about this property, please visit the dedicated website (address + house number).

J.J. van Oosten Makelaardij is the NVM estate agent representing the seller. We advise you to engage your own NVM agent to represent your interests in the purchase of this property.

No rights can be derived from the content of this description.

The living area has been measured in accordance with the industry-wide measurement instruction (BBMI), which is based on NEN 2580. The BBMI aims to provide a uniform method for indicating the usable floor area. The measurement instruction does not fully exclude variations in measurement results due to interpretation differences, rounding, or practical limitations during measurement.

No rights can be derived from this offer text.

The usable area of ??the property has been measured in accordance with the industry-wide measurement instructions (BBMI). The BBMI is based on NEN2580. The BBMI is intended to provide a more consistent measurement method for providing an indication of usable area. The measurement instructions do not completely eliminate differences in measurement results, for example, due to differences in interpretation, rounding, or limitations in the measurement process.

Features

Alarm system
Air conditioning
Transfer of ownership
Asking Price
€ 1.295.000 k.k.
Status
beschikbaar
Acceptance
in overleg
Construction
Kind of house
Herenhuis
Building type
tussenwoning
Construction period
1903
Energy rating
B
Roof type
zadeldak
Bedrooms
6
Bathrooms
2
Surface Areas And Volume
Living Area
232 m2
Other indoor space
0 m2
Exterior space attached to the buildinge
12 m2
External storage space
18 m2
Volume in cubic meters
821 m3
Plot Size
413 m2
Facilities
Alarminstallatie
Tv kabel
Airconditioning
Dakraam
Domotica
Natuurlijke ventilatie
In woonwijk
Baerz & Co Property Brochure

Brochure

Videos

Floor Plans

DB Makelaars

Dorpsstraat 79
2661 CE Bergschenhoek

dominique@dbmakelaars.nl
+31 107850833

www.dbmakelaars.nl

Information / Viewing request

Dominique Blom profile image
Dominique Blom
Real Estate Agent

Buying a Luxury Property in Rotterdam

Rotterdam offers sophisticated living for a discerning international community, with exceptional cultural, business, and lifestyle opportunities. Residents benefit from world-class services, distinctive homes, and a globally connected urban environment.