Ons kantoor is lid van Baerz & Co luxury homes; een Nederlands platform dat exclusieve woningmakelaars met elkaar verbindt. Voor meer informatie over ons landelijke aanbod en dienstverlening kunt u contact opnemen met ons secretariaat.

RHENEN
Jacobaweide 14 - 3911 NN
Netherlands

Wistik Zonnenberg profile image
Wistik Zonnenberg
Register Makelaar Taxateur/ Eigenaar
€1,295,000 k.k.
Living Area
196m2
Plot Size
450m2
Bedrooms
4

Description

Living at the highest level: stylish, smart, energy-efficient and carefree enjoyment in an oasis of comfort.

At Jacobaweide 14, located within the municipality of Rhenen and right on the border with Veenendaal in the residential area of Petenbos, you will find this modern, immaculately finished detached home with a generous living area of no less than 195 m². The property offers all the comfort, luxury and technology of contemporary living: four spacious bedrooms, two stylish bathrooms, a bright living room and a generous open-plan kitchen.
The entire house is equipped with underfloor heating and cooling, air conditioning with nano filters (for clean air, free of pollen and bacteria), and boasts an exceptional energy label A++++.

A smart Busch-Jaeger home automation system allows you to control lighting and scenes, camera and alarm systems, all sun shading, the Sonos sound system (installed in both bathrooms, the kitchen, living room and office), and fire safety features (in the event of a fire, all sun shading automatically retracts and all lights turn on).

The home is finished with a beautiful PVC herringbone floor and is in perfect condition. A property where everything is just right and that is ready for immediate occupancy.

The house is located in a quiet area, directly adjacent to the popular Petenbos district, with the vast Prattenburg forest just a stone’s throw away. You will enjoy a green, child-friendly living environment with all daily amenities nearby. Schools, supermarkets and sports facilities such as football, tennis and fitness are within short distance. Accessibility is excellent: the N233 and A12 can be reached within minutes, providing easy access to cities such as Wageningen, Veenendaal and Utrecht. Public transport is also well organized, with Veenendaal-Centrum railway station only a few minutes away.

Entrance
You enter the property via the front garden and the private driveway, which offers parking space for two cars and includes a charging point. Additional parking is available in the immediate surroundings.
In the spacious reception hall, the stylish staircase immediately catches the eye, beautifully illuminated by natural daylight. As it continues openly to the second floor, it is a true eye-catcher. The high-quality finish is evident from the moment you step inside. From the hall, you have access to the toilet, the living room and the staircase to the first floor.

Living Room
Elegant pivot doors lead you into the bright and spacious living room. The generous layout provides ample room for a comfortable seating area. A custom-made wall unit enhances the luxurious appearance and offers practical storage space. Large windows all around ensure an abundance of natural light and create a seamless connection between indoors and outdoors.

Kitchen
The modern open-plan kitchen forms the heart of the home and is equipped with high-end appliances. The countertop is made of Pure Quartzite, a stylish and durable natural stone. Cooking is done on a Bora induction cooktop with integrated extraction, while the Miele ovens, built-in coffee machine, and the large Siemens refrigerator, freezer and dishwasher ensure optimal cooking comfort.
The kitchen offers sufficient space for a large dining table and features French doors opening onto the terrace, allowing you to dine or relax outdoors with ease.

Behind an inconspicuous door is the practical utility room, offering space for storage and household appliances. This area also adjoins an additional room, perfectly suited as a home office, hobby room or playroom.

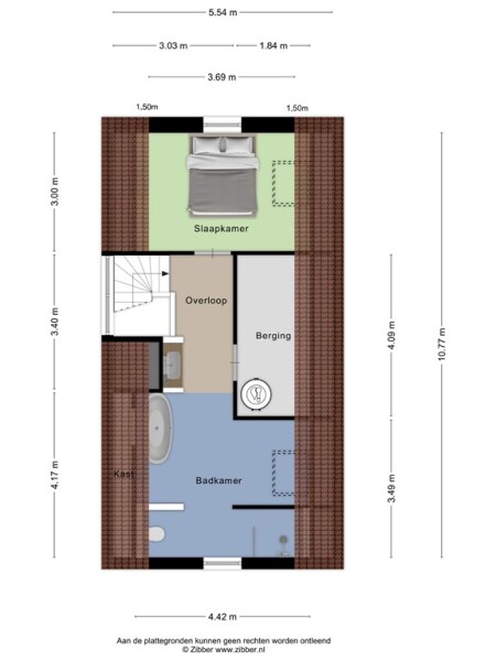
First Floor
The staircase in the hall leads to the first floor, where you will find three spacious bedrooms and a high-quality bathroom. The entire floor is equipped with underfloor heating and cooling. Two bedrooms feature air conditioning and custom-built wardrobes and desks. The third bedroom is currently used as a walk-in closet. Screens have been installed to ensure optimal comfort throughout the year.

Sanitary Facilities
The modern bathroom is fully tiled and equipped with a walk-in shower with glass partition, a double washbasin with mirror, and a Sonos speaker. On the landing, there is a separate toilet with wall-mounted toilet. Everything exudes quality and comfort.

Second Floor
A fixed staircase leads to the second floor, which is designed as the master suite. Here you will find a spacious bedroom and a generous open wellness area with a freestanding bathtub, walk-in shower, toilet and double washbasin. Preparations have been made for the installation of a sauna, allowing you to create a true relaxation space. On the landing, a beautiful built-in wardrobe wall with lighting has been installed.

There is also a storage/technical room housing the Atlantic heat pump, the heat recovery ventilation system, and additional storage space.

Outdoor Space
Surrounding the home is a neat, green garden, largely laid out with lawn and partially paved. Thanks to its ideal orientation, you can enjoy the sun all day long; from early morning until the evening sun on the terrace. The garden offers plenty of privacy and space for a lounge or dining area. At the front, there is a driveway with space for two cars and a charging point, while attractive outdoor lighting creates a pleasant atmosphere, even in the evening.

This property is also featured in episode 3 of From Living Villa to Dream Villa, season 18!

Good to know: The seller is open to a purchase subject to the sale of the buyer’s current home.

General Information
Type of property: Detached house
Year of construction: 2024
Number of rooms: 6
Number of bedrooms: 4
Number of bathrooms: 2
Parking: Private driveway and public parking
Features: Dormer window / charging point / utility room
Garden orientation: Northwest
Garden access: Front, side and via the house

Technical Specifications
Hot water supply: Air-to-water heat pump (Atlantic/Novaya 300L)
Heating system: Air-to-water heat pump (Atlantic/Novaya 300L)
Underfloor heating/cooling: Entire house
Solar panels: 16 units
Facilities: Air conditioning / alarm system / external sun shading / home automation / water softener
Heat recovery system: Present
Mechanical ventilation: Present
Insulation: Roof, cavity walls and floors fully insulated
Double glazing: Entire house
Fiber optic cable, TV cable
Window frames: Plastic

WOULD YOU LIKE TO TAKE A LOOK INSIDE?

For more information about this property, please contact our office in Veenendaal by phone at +31 (0)318 559600.

You are most welcome! The best impression of this home is, of course, gained during a viewing. We always try to schedule viewings in consultation with both seller and buyer and take plenty of time, so you can view and experience the property at your leisure.

Note: The utmost care has been taken in compiling this information. No rights can be derived from any inaccuracies in the stated data or drawings.

Features

Solar panels
Alarm system
Transfer of ownership
Asking Price
€ 1.295.000 k.k.
Status
Available
Acceptance
In Concert
Reference
08087
Construction
Kind of house
Single Family House
Building type
Detached House
Construction period
2024
Energy rating
A++
Roof type
composite
Bedrooms
4
Bathrooms
2
Surface Areas And Volume
Living Area
196 m2
Exterior space attached to the buildinge
1 m2
Volume in cubic meters
726 m3
Plot Size
450 m2
Facilities
Airco
Alarm
Fibreopticcable
Garden
Homeautomation
Outdoorawnings
Skylight
Solarpanels
Ventilation
Baerz & Co Property Brochure

Brochure

Videos

Floor Plans

Zonnenberg Makelaardij

Kerkewijk 108
3904 JG Veenendaal

info@zonnenbergmakelaardij.nl
+31 318 559600

www.zonnenbergmakelaardij.nl

Information / Viewing request

Wistik Zonnenberg profile image
Wistik Zonnenberg
Register Makelaar Taxateur/ Eigenaar

Buying a Luxury Property in Rhenen

Rhenen offers elevated living amidst river views and heritage charm. Residents enjoy a vibrant, close-knit community, expert property services, and seamless integration with the international lifestyle.