Baerz & Co is een landelijk samenwerkingsverband van zorgvuldig geselecteerde boutique luxury makelaars. Samen vormen wij één netwerk, met één gedeeld aanbod. De woningen die u op onze website ziet, zijn afkomstig van alle aangesloten kantoren binnen Baerz & Co. Daardoor is niet ieder object rechtstreeks door ons kantoor in verkoop, maar door een gespecialiseerde collega binnen ons netwerk. Heeft u een woning gevonden die u aanspreekt en wilt u meer informatie? Dan brengen wij u graag persoonlijk in contact met de betreffende verkoopmakelaar, zodat u direct en zorgvuldig wordt begeleid.

AMSTERDAM
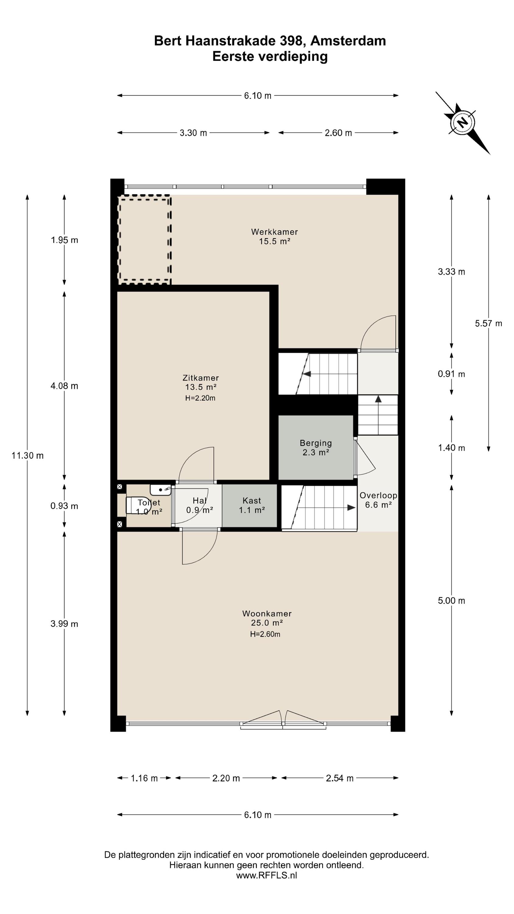
Bert Haanstrakade 398 - 1087 EC
Netherlands

Dominique Blom profile image
Dominique Blom
Real Estate Agent
€1,650,000 k.k.
Living Area
276m2
Plot Size
177m2
Bedrooms
5

Description

Bert Haanstrakade 398, 1087 EC Amsterdam

Situated directly along the IJmeer on one of IJburg’s most sought-after waterfront locations, this modern and spacious family home of approximately 276 m² offers the perfect blend of light, luxury, and comfort. The property is beautifully finished, energy-efficient, and enjoys spectacular views over the water through its expansive floor-to-ceiling windows.

Spread across four floors, the home features five bedrooms, two bathrooms, a sauna, private cinema, and several multifunctional rooms — offering space and flexibility for modern family living. The sunny south-facing garden, two private parking spaces with a electric charging station, and 17 solar panels complete this exceptional offering.

A rare combination of space, style, and serenity — all just minutes from the vibrant heart of Amsterdam.

Layout

Ground Floor

A welcoming entrance hall with a separate guest toilet leads to a spacious room at the front — ideal for working from home or as an additional bedroom. At the rear, the expansive living kitchen impresses with high ceilings and floor-to-ceiling windows overlooking the garden, creating an abundance of light and a sense of openness.

The custom-designed kitchen features a large cooking island with a composite worktop and premium built-in appliances, including a Quooker, induction cooktop, dishwasher, microwave, oven, and plate warmer. French doors open onto the beautifully landscaped, low-maintenance garden of approximately 54 m², with wooden decking, stone paving, and lush greenery. A private gate provides direct access to the back area with two private parking spaces equipped with an electric charging station.

First Floor

The first floor serves as an elegant living level with a bright, open layout. The living room at the front offers panoramic water views through its large windows and features French doors and a modern fireplace for a warm, inviting atmosphere.

Adjoining the living room is a fully soundproofed home cinema, finished with acoustic wall panels — the perfect retreat for movie nights or enjoying music in peace. At the rear, another spacious room overlooks the green courtyard and can serve as a home office, playroom, or guest room.

A separate toilet, storage room, and built-in closet complete this level.

Second Floor

Via the staircase from the first floor, you reach a split-level area currently designed as a unique children’s play area with an open view of the living room below. This creative space is a true eye-catcher and highlights the family-friendly character of the home.

On the second floor, there is a spacious bedroom at the front with an adjoining room currently used as a walk-in closet.

The luxurious bathroom exudes tranquility and sophistication, finished in warm earth tones and high-quality materials. It features a freestanding bathtub, walk-in rain shower, double washbasin, and a sauna — a wonderful private retreat to relax after a busy day.

This floor also includes a practical laundry room with connections for a washing machine and dryer, a separate storage room, and a guest toilet.

Third Floor

At the front of the house lies a very spacious bedroom, currently arranged as a stylish master suite. The full-width window offers spectacular panoramic views over the IJmeer, while the glass partition wall and soft, neutral color palette create a modern and airy atmosphere.

At the rear are two additional bedrooms, perfectly suited as children’s rooms, guest rooms, or home offices. Both spaces are bright, efficiently laid out, and feature large windows that let in plenty of natural light.

This floor also includes a second bathroom, fitted with a walk-in shower, washbasin unit, and modern finishes. In addition, there is a separate toilet and a practical storage room providing extra space.

A landing with a skylight connects the rooms and allows natural light to flow beautifully throughout the floor.

Location and Accessibility

Bert Haanstrakade is beautifully situated directly on the water on Haveneiland West, between Steigereiland and Grote Rieteiland in IJburg. This stunning location offers wide, unobstructed views over the IJmeer and an atmosphere of calm and openness. The area truly offers something for everyone.

In the immediate surroundings you’ll find the trendy city beach “Blijburg aan Zee”, the expansive Diemerpark, and several playgrounds and sports fields — making this an ideal setting for both families and those who love outdoor living and tranquility.

IJburg also offers a wide range of amenities, including excellent schools, childcare facilities, and a modern shopping center with all daily conveniences as well as specialty stores. Every Saturday, the lively “Reuring Market” takes place on Joris Ivensplein. The neighborhood also boasts an inviting selection of restaurants, cafés, and terraces along the harbor, IJburglaan, and Steigereiland — perfect for those who enjoy a sociable and vibrant atmosphere.

Accessibility is excellent. The A10 ring road (exit S114) can be reached within minutes, with direct connections to the A1, A2, and A9 motorways. Public transport is also very convenient — tram line 26 takes you directly to Amsterdam Central Station in just 15 to 20 minutes.

In short: IJburg offers the perfect combination of space, nature, peace, and urban convenience — with the lively heart of Amsterdam always within easy reach.

Details
- Living area of approximately 276 m² (measured in accordance with NEN 2580);
- Spacious south-facing garden;
- Two private parking spaces on-site, equipped with an electric charging station;
- Built in 2015;
- Playful and creatively designed floor layout;
- Soundproof home cinema room;
- Underfloor heating throughout the entire property;
- 17 solar panels;
- Energy-efficient and gas-free home with HR++ glazing and district heating;
- Elevator shaft present (lift installation possible);
- Leasehold paid off until 28 February 2065 (AB 2016) and converted to perpetual leasehold with an annual canon of approximately €3,947.85 (subject to yearly indexation);
- Transfer upon mutual agreement.

We have gathered this information with the greatest of possible care. However, we will not accept any liability for any incompleteness, inaccuracy or any other matter nor for the consequences of such. All measurements and surfaces stated are indicative. The purchaser has a duty to investigate any matter that may be of importance to him or her. The estate agent is the adviser to the seller with regard to this residence. We advise you to engage an expert (NVM registered) estate agent who will guide you through the purchasing process. Should you have any specific desires with regard to the residence, we advise you to make these known as soon as possible to your purchasing estate agent and have an independent investigation carried out into such matters. If you do not engage an expert, you will be deemed as considering yourself to be sufficiently expert to be- to oversee all matters that could be important. The NVM conditions apply.

Features

Solar panels
Transfer of ownership
Asking Price
€ 1.650.000 k.k.
Status
beschikbaar
Acceptance
in overleg
Construction
Kind of house
Eengezinswoning
Building type
tussenwoning
Construction period
2015
Energy rating
A
Roof type
plat dak
Bedrooms
5
Bathrooms
2
Surface Areas And Volume
Living Area
276 m2
Other indoor space
0 m2
Volume in cubic meters
903 m3
Plot Size
177 m2
Facilities
Mechanische ventilatie
Rookkanaal
Frans balkon
Dakraam
Sauna
Zonnepanelen
Natuurlijke ventilatie
Aan water
Aan rustige weg
In woonwijk
Vrij uitzicht
Baerz & Co Property Brochure

Brochure

Videos

DB Makelaars

Dorpsstraat 79
2661 CE Bergschenhoek

dominique@dbmakelaars.nl
+31 107850833

www.dbmakelaars.nl

Information / Viewing request

Dominique Blom profile image
Dominique Blom
Real Estate Agent

Buying a Luxury Property in Amsterdam

Amsterdam offers a cosmopolitan lifestyle defined by heritage, connectivity, and discreet luxury. Residents benefit from a robust international community, curated services, and vibrant culture. The city’s enduring appeal lies in its blend of history, sophistication, and progressive spirit.